TOURS_155

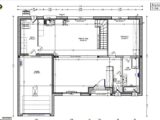
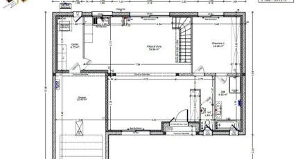
Plan maison 7 pièces 6 chambres Surface maison 150 à 155 m2

Maison de 155m² à étage offrant 6 chambres dont une suite parentale avec une salle de bain (douche et baignoire) au RDC. Ce projet offre un bel espace de vie ouvert d'environ 55m² avec un cellier attenant à la cuisine et au garage. L'entrée est marquée par un porche et une porte Tiercée.

Côté prestations, cette maison bénéficie d'ouvertures en aluminium de couleur, une pompe à chaleur associée à un plancher chauffant au RDC (radiateurs à l'étage) et du carrelage grand format dans la pièce à vivre et les pièces d'eau.

Construire ce modèle ?

    * Champs obligatoires

    Vos informations sont traitées par HEXAOM et transmises à un conseiller commercial qui vous contactera afin de répondre à votre demande. Les plans et images présentés sur notre site sont la propriété d’HEXAOM et ne peuvent pas être reproduits sans son accord. Pour retrouver notre politique de protection des données personnelles et exercer vos droits conformément à la « loi informatique et liberté » cliquez-ici.