TORONTON 120

Plan maison 5 pièces 4 chambres Surface maison 120 à 130 m2

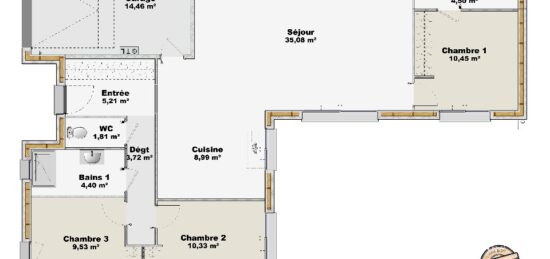
Belle maison tradi-moderne de 120 m²,étage complet, belle pièce à vivre de plus de 40 m², une suite parentale avec salle d'eau et dressing.

Concernant l'étage, vous disposerez de trois chambres supplémentaires avec placard, une salle de bain, un cellier.

Construire ce modèle ?

    * Champs obligatoires

    Vos informations sont traitées par HEXAOM et transmises à un conseiller commercial qui vous contactera afin de répondre à votre demande. Les plans et images présentés sur notre site sont la propriété d’HEXAOM et ne peuvent pas être reproduits sans son accord. Pour retrouver notre politique de protection des données personnelles et exercer vos droits conformément à la « loi informatique et liberté » cliquez-ici.