TOKYO 110

Plan maison 3 pièces 2 chambres Surface maison 100 à 110 m2

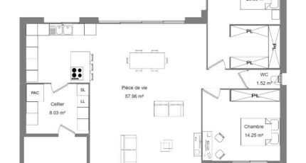
Belle maison de plain-pied de 110 m², combles aménageables, belle pièce à vivre de 55 m², une suite parentale avec salle d'eau et dressing, une chambre supplémentaire avec placard, un cellier et un grand garage.

Construire ce modèle ?

    * Champs obligatoires

    Vos informations sont traitées par HEXAOM et transmises à un conseiller commercial qui vous contactera afin de répondre à votre demande. Les plans et images présentés sur notre site sont la propriété d’HEXAOM et ne peuvent pas être reproduits sans son accord. Pour retrouver notre politique de protection des données personnelles et exercer vos droits conformément à la « loi informatique et liberté » cliquez-ici.