ROME 127

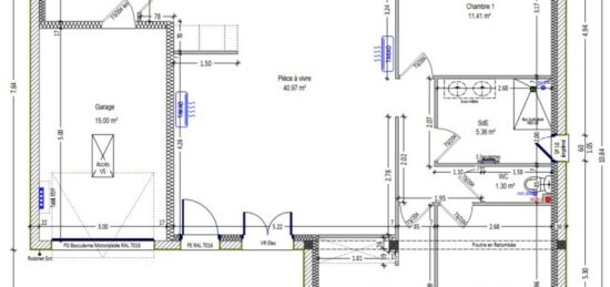
Plan maison 6 pièces 4 chambres Surface maison 120 à 140 m2

Belle maison de plain-pied de 127 m², belle pièce à vivre de plus de 50 m², une suite parentale avec salle d'eau et dressing, trois chambres avec placard et salle de d'eau commune, un cellier et un grand garage.

Construire ce modèle ?

    * Champs obligatoires

    Vos informations sont traitées par HEXAOM et transmises à un conseiller commercial qui vous contactera afin de répondre à votre demande. Les plans et images présentés sur notre site sont la propriété d’HEXAOM et ne peuvent pas être reproduits sans son accord. Pour retrouver notre politique de protection des données personnelles et exercer vos droits conformément à la « loi informatique et liberté » cliquez-ici.