NEW YORK 190

Plan maison 6 pièces 4 chambres Surface maison 180 à 200 m2

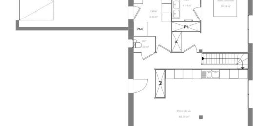
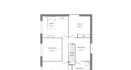
Maison contemporaine de plus de 180 m² habitables. Une entrée marquée vous conduit dans une pièce de vie ouverte de plus de 80 m², très lumineuse grâce à ses grandes ouvertures, une chambre parentale avec salle d'eau privative et un cellier donnant sur la cuisine et un grand garage. Vous retrouverez également trois chambres de plus de 12 m² avec une salle de bain ainsi qu'une mezzanine donnant sur un vide sur séjour.

Construire ce modèle ?

    * Champs obligatoires

    Vos informations sont traitées par HEXAOM et transmises à un conseiller commercial qui vous contactera afin de répondre à votre demande. Les plans et images présentés sur notre site sont la propriété d’HEXAOM et ne peuvent pas être reproduits sans son accord. Pour retrouver notre politique de protection des données personnelles et exercer vos droits conformément à la « loi informatique et liberté » cliquez-ici.