MONTREAL 126

Plan maison 5 pièces 4 chambres Surface maison 120 à 130 m2

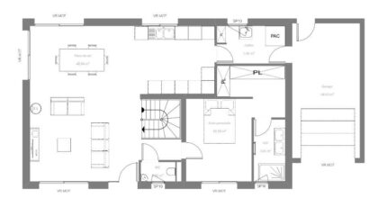
Maison tradi-moderne de plus de 125 m² habitables.
Une entrée marquée vous conduit dans une pièce de vie ouverte de plus de 48 m², très lumineuse grâce à ses grandes ouvertures, une chambre parentale avec salle d'eau privative, un cellier donnant sur la cuisine et un grand garage.
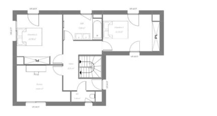
Vous retrouverez également à l'étage trois chambres d'enfant avec une grande salle de bain.

Construire ce modèle ?

    * Champs obligatoires

    Vos informations sont traitées par HEXAOM et transmises à un conseiller commercial qui vous contactera afin de répondre à votre demande. Les plans et images présentés sur notre site sont la propriété d’HEXAOM et ne peuvent pas être reproduits sans son accord. Pour retrouver notre politique de protection des données personnelles et exercer vos droits conformément à la « loi informatique et liberté » cliquez-ici.