LOS ANGELES 160

Plan maison 6 pièces 3 chambres Surface maison 160 à 180 m2

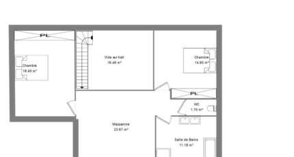
Maison tradi-moderne de plus de 160 m² habitables. Une entrée marquée vous conduit dans une pièce de vie ouverte de plus de 60 m², très lumineuse grâce à ses grandes ouvertures, une chambre parentale avec salle d'eau privative et un cellier donnant sur la cuisine et un grand garage. A l'étage, vous retrouverez deux chambres de plus de 12 m² avec une salle de bain ainsi qu'une vaste mezzanine.

Construire ce modèle ?

    * Champs obligatoires

    Vos informations sont traitées par HEXAOM et transmises à un conseiller commercial qui vous contactera afin de répondre à votre demande. Les plans et images présentés sur notre site sont la propriété d’HEXAOM et ne peuvent pas être reproduits sans son accord. Pour retrouver notre politique de protection des données personnelles et exercer vos droits conformément à la « loi informatique et liberté » cliquez-ici.