LIMA_110

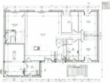
Plan maison 5 pièces 4 chambres Surface maison 105 à 110 m2

Maison de 110m² de plain-pied (combles aménageables avec pièce évolutive) offrant 4 chambres dont une suite parentale avec un point d'eau privatif et un dressing. Ce projet offre un bel espace de vie ouvert d'environ 50m² avec un cellier attenant à la cuisine et au garage.
Côté prestations, cette maison bénéficie d'ouvertures en PVC, un chauffage PAC avec radiateurs et du carrelage dans la pièce à vivre et les pièces d'eau.

Construire ce modèle ?

    * Champs obligatoires

    Vos informations sont traitées par HEXAOM et transmises à un conseiller commercial qui vous contactera afin de répondre à votre demande. Les plans et images présentés sur notre site sont la propriété d’HEXAOM et ne peuvent pas être reproduits sans son accord. Pour retrouver notre politique de protection des données personnelles et exercer vos droits conformément à la « loi informatique et liberté » cliquez-ici.