FLORENCE 110

Plan maison 3 pièces 3 chambres Surface maison 90 à 110 m2

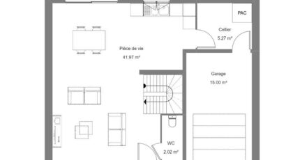
Magnifique maison de 110 m² avec un étage et un garage.
Cette maison se compose de 4 chambres dont une suite parentale avec dressing et salle d'eau.

Côté prestations : Pompe à chaleur avec plancher chauffant, Menuiseries RAL 7016

Construire ce modèle ?

    * Champs obligatoires

    Vos informations sont traitées par HEXAOM et transmises à un conseiller commercial qui vous contactera afin de répondre à votre demande. Les plans et images présentés sur notre site sont la propriété d’HEXAOM et ne peuvent pas être reproduits sans son accord. Pour retrouver notre politique de protection des données personnelles et exercer vos droits conformément à la « loi informatique et liberté » cliquez-ici.