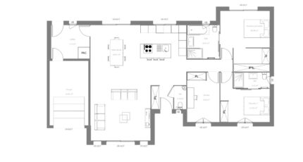
CANBERRA 117

Plan maison 4 pièces 3 chambres Surface maison 110 à 120 m2

Belle maison de plain pied de 117m² habitables. Une entrée marquée vous conduit dans une pièce de vie ouverte de plus de 60 m², très lumineuse grâce à ses grandes ouvertures, une chambre parentale avec salle d'eau privative et un cellier donnant sur la cuisine et un garage de 15 m². Vous retrouverez également deux chambres d'enfant de plus de 10 m² avec une salle de bain.

Construire ce modèle ?

    * Champs obligatoires

    Vos informations sont traitées par HEXAOM et transmises à un conseiller commercial qui vous contactera afin de répondre à votre demande. Les plans et images présentés sur notre site sont la propriété d’HEXAOM et ne peuvent pas être reproduits sans son accord. Pour retrouver notre politique de protection des données personnelles et exercer vos droits conformément à la « loi informatique et liberté » cliquez-ici.