BANGKOK 157

Plan maison 5 pièces 5 chambres Surface maison 150 à 160 m2

Maison tradi-moderne de plus de 150 m² habitables.

Une entrée marquée vous conduit dans une pièce de vie ouverte de plus de 50 m², très lumineuse grâce à ses grandes ouvertures.

Au rez-de-chaussée, vous retrouverez une grande chambre ainsi qu'un bureau et une salle d'eau.

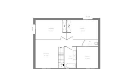
Vous retrouverez également trois grandes chambres d'enfant donnant sur une mezzanine de 16m² avec une salle de bain.

Construire ce modèle ?

    * Champs obligatoires

    Vos informations sont traitées par HEXAOM et transmises à un conseiller commercial qui vous contactera afin de répondre à votre demande. Les plans et images présentés sur notre site sont la propriété d’HEXAOM et ne peuvent pas être reproduits sans son accord. Pour retrouver notre politique de protection des données personnelles et exercer vos droits conformément à la « loi informatique et liberté » cliquez-ici.