Maison neuve à
Veigné
(37250) Référence :
SD2417492_3
Prix du projet : Maison avec Terrain
prix 389 134 €
- 4 pièces
- 4 chambres
- Surface maison 120 m2
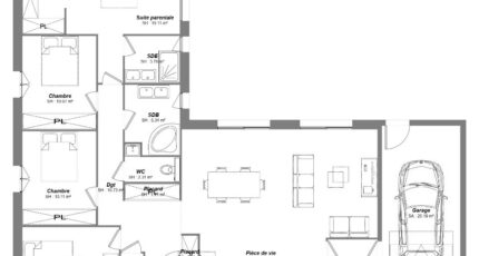
Vous rêvez de faire construire ? Stéphane Digneton ( O6.64.92.89.69)vous propose cette maison en L de 121m², avec 4 chambres dont une suite parentale. Elle comprend également 2 salles de bain, une belle pièce de vie lumineuse et un grand garage de plus de 20m². Entièrement personnalisable, n'hésitez pas à me contacter pour discuter de votre projet.
CONSTRUCTIONS IDEALE DEMEURE a sélectionné avec un partenaire foncier un terrain pour construire cette maison.
Mentions légales
Terrain proposé par un partenaire foncier selon disponibilités et autorisation de publicité au prix de 143 184 €. Hors droit d'enregistrement et frais de notaire. Terrain + Maison proposés au prix de 389 134 € (Hors branchements et raccordements, papiers peints, peintures, revêtement de sol dans les chambres. Tarif modifiable sans préavis). Etiquette énergie : A. Différents modèles disponibles pour ce terrain. Assurances et garanties du constructeur (RC professionnelle, décennale, dommage ouvrage, garantie de remboursement de l'acompte, livraison à prix et délai convenu) : https://www.constructions-ideale-demeure.fr/mentions-legales/.Agence Constructions Idéale Demeure de Saint-Cyr-sur-Loire (37540)
- Téléphone :
- 02 47 55 88 12
- Adressse :
- 2 rue Thérèse et René Planiol
37540 Saint-Cyr-sur-Loire, France
