Maison neuve à
Vallères
(37190) Référence :
SD2432386_1
Prix du projet : Maison avec Terrain
prix 197 850 €
- 4 pièces
- 3 chambres
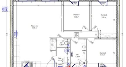
- Surface maison 85 m2
À vendre : située à deux pas de Tours, votre agence Constructions Idéale Demeure Saint-Cyr-sur-Loire est ravie de vous présenter cette maison de 4 pièces de plain-pied de 85 m² et de 501 m² de terrain bénéficiant d'un emplacement d'exception dans Vallères (37190).
Elle est composée de trois chambres, d'une cuisine et d'une salle de bains. Cette maison est neuve.
La maison se situe dans un secteur attractif. On trouve l'École Primaire à moins de 10 minutes à pied. On trouve un accès à l'autoroute A85 à 2 km.
Elle est proposée à l'achat pour 197 850 €.
Prenez contact avec notre agence (DIGNETON Stéphane : O6.64.92.89.69) pour toute question sur la maison, sur les démarches à suivre ou sur les modalités de vente.
Mentions légales
Terrain proposé par un partenaire foncier selon disponibilités et autorisation de publicité au prix de 69 500 €. Hors droit d'enregistrement et frais de notaire. Terrain + Maison proposés au prix de 197 850 € (Hors branchements et raccordements, papiers peints, peintures, revêtement de sol dans les chambres. Tarif modifiable sans préavis). Etiquette énergie : A. Différents modèles disponibles pour ce terrain. Assurances et garanties du constructeur (RC professionnelle, décennale, dommage ouvrage, garantie de remboursement de l'acompte, livraison à prix et délai convenu) : https://www.constructions-ideale-demeure.fr/mentions-legales/.Agence Constructions Idéale Demeure de Saint-Cyr-sur-Loire (37540)
- Téléphone :
- 02 47 55 88 12
- Adressse :
- 2 rue Thérèse et René Planiol
37540 Saint-Cyr-sur-Loire, France
