Maison neuve à
Savigné-sur-Lathan
(37340) Référence :
JT2255885_1
Prix du projet : Maison avec Terrain
prix 180 000 €
- 5 pièces
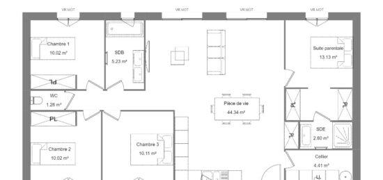
- 4 chambres
- Surface maison 104 m2
Charmante maison familiale de plain-pied avec une disposition pratique.
Elle comprend 4 chambres, dont une suite parentale avec salle de bain privative et dressing.
Le séjour lumineux offre un espace ouvert de plus de 45 m² idéal pour se détendre et recevoir. Cette maison est parfaite pour une vie confortable en famille.
Nous réalisons votre projet sur-mesure, contactez-moi Julie Texier au °7.57.82.55.62
CONSTRUCTIONS IDEALE DEMEURE a sélectionné avec un partenaire foncier un terrain pour construire cette maison.
Mentions légales
Terrain proposé par un partenaire foncier selon disponibilités et autorisation de publicité au prix de 29 000 €. Hors droit d'enregistrement et frais de notaire. Maison proposée, avec un contrat de construction de maison individuelle, dans le cadre de la loi du 19/12/1990, au prix de 151 000 € (Hors branchements et raccordements, papiers peints, peintures, revêtement de sol dans les chambres, qui sont chiffrés dans les travaux qui restent à charge du client. Tarif modifiable sans préavis). Étiquette énergie : A. Différents modèles disponibles pour ce terrain. Assurances et garanties du constructeur comprises (RC professionnelle, décennale, dommage ouvrage).Agence Constructions Idéale Demeure de Saint-Cyr-sur-Loire (37540)
- Téléphone :
- 02 47 55 88 12
- Adressse :
- 2 rue Thérèse et René Planiol
37540 Saint-Cyr-sur-Loire, France
