Maison neuve à
Saint-Paterne-Racan
(37370) Référence :
SD2410362_1
Prix du projet : Maison avec Terrain
prix 212 000 €
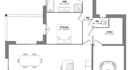
- 4 pièces
- 2 chambres
- Surface maison 89 m2
Voici une belle maison de 89m² à construire, offrant une grande pièce de vie lumineuse grâce à sa triple exposition. Elle comprend deux chambres confortables, une salle de bain équipée d'une douche et d'une baignoire, ainsi qu'un grand garage. Un atout majeur de cette maison est sa terrasse couverte, idéale pour profiter de l'extérieur en toute saison. De plus, elle est entièrement personnalisable selon vos envies et besoins.
Je reste disponible pour toutes demandes de renseignements, n'hésitez pas me contacter : Stéphane Digneton : °6.64.92.89.69.
CONSTRUCTIONS IDEALE DEMEURE a sélectionné avec un partenaire foncier un terrain pour construire cette maison.
Mentions légales
Terrain proposé par un partenaire foncier selon disponibilités et autorisation de publicité au prix de 37 000 €. Hors droit d'enregistrement et frais de notaire. Terrain + Maison proposés au prix de 212 000 € (Hors branchements et raccordements, papiers peints, peintures, revêtement de sol dans les chambres. Tarif modifiable sans préavis). Etiquette énergie : A. Différents modèles disponibles pour ce terrain. Assurances et garanties du constructeur (RC professionnelle, décennale, dommage ouvrage, garantie de remboursement de l'acompte, livraison à prix et délai convenu) : https://www.constructions-ideale-demeure.fr/mentions-legales/.Agence Constructions Idéale Demeure de Saint-Cyr-sur-Loire (37540)
- Téléphone :
- 02 47 55 88 12
- Adressse :
- 2 rue Thérèse et René Planiol
37540 Saint-Cyr-sur-Loire, France
