Maison neuve à
Saint-Paterne-Racan
(37370) Référence :
SD2296554_1
Prix du projet : Maison avec Terrain
prix 278 000 €
- 4 pièces
- 4 chambres
- Surface maison 120 m2
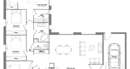
Vous rêvez de faire construire ? Stéphane Digneton ( °6.64.92.89.69)vous propose cette maison en L de 121m², avec 4 chambres dont une suite parentale. Elle comprend également 2 salles de bain, une belle pièce de vie lumineuse et un grand garage de plus de 20m². Entièrement personnalisable, n'hésitez pas à me contacter pour discuter de votre projet.
CONSTRUCTIONS IDEALE DEMEURE a sélectionné avec un partenaire foncier un terrain pour construire cette maison.
Mentions légales
Terrain proposé par un partenaire foncier selon disponibilités et autorisation de publicité au prix de 37 000 €. Hors droit d'enregistrement et frais de notaire. Maison proposée, avec un contrat de construction de maison individuelle, dans le cadre de la loi du 19/12/1990, au prix de 241 000 € (Hors branchements et raccordements, papiers peints, peintures, revêtement de sol dans les chambres, qui sont chiffrés dans les travaux qui restent à charge du client. Tarif modifiable sans préavis). Étiquette énergie : A. Différents modèles disponibles pour ce terrain. Assurances et garanties du constructeur comprises (RC professionnelle, décennale, dommage ouvrage).Agence Constructions Idéale Demeure de Saint-Cyr-sur-Loire (37540)
- Téléphone :
- 02 47 55 88 12
- Adressse :
- 2 rue Thérèse et René Planiol
37540 Saint-Cyr-sur-Loire, France
