Maison neuve à
Saint-Laurent-en-Gâtines
(37380) Référence :
SD2319544_5
Prix du projet : Maison avec Terrain
prix 178 080 €
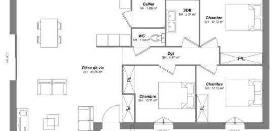
- 4 pièces
- 2 chambres
- Surface maison 64 m2
Venez faire construire cette belle maison de 64 m² offrant un espace de vie très lumineux grâce à une triple exposition.
Elle comprend deux belles chambres avec placards intégrés pour un rangement optimisé.
La salle de bains, spacieuse, peut accueillir à la fois une douche, une baignoire et une double vasque pour un confort maximal.
Je reste disponible pour toutes demandes de renseignements, n'hésitez pas me contacter : Stéphane Digneton : O6.64.92.89.69.
Mentions légales
Terrain proposé par un partenaire foncier selon disponibilités et autorisation de publicité au prix de 56 480 €. Hors droit d'enregistrement et frais de notaire. Terrain + Maison proposés au prix de 121 600 € (Hors branchements et raccordements, papiers peints, peintures, revêtement de sol dans les chambres. Tarif modifiable sans préavis). Etiquette énergie : A. Différents modèles disponibles pour ce terrain. Assurances et garanties du constructeur (RC professionnelle, décennale, dommage ouvrage, garantie de remboursement de l'acompte, livraison à prix et délai convenu) : https://www.constructions-ideale-demeure.fr/mentions-legales/.Agence Constructions Idéale Demeure de Saint-Cyr-sur-Loire (37540)
- Téléphone :
- 02 47 55 88 12
- Adressse :
- 2 rue Thérèse et René Planiol
37540 Saint-Cyr-sur-Loire, France
