Maison neuve à
Rouziers-de-Touraine
(37360) Référence :
SD2369988_1
Prix du projet : Maison avec Terrain
prix 298 300 €
- 4 pièces
- 3 chambres
- Surface maison 105 m2
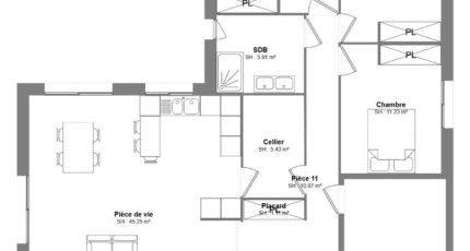
Venez faire construire cette maison en L de 105m², avec une pièce de vie spacieuse de plus de 45m². Elle comprend trois belles chambres, des placards pour un rangement optimal, et un garage intégré. La maison est entièrement personnalisable selon vos envies.
Pour en discuter, contactez Stéphane Digneton au O6 64 92 89 69.
CONSTRUCTIONS IDEALE DEMEURE a sélectionné avec un partenaire foncier un terrain pour construire cette maison.
Mentions légales
Terrain proposé par un partenaire foncier selon disponibilités et autorisation de publicité au prix de 96 300 €. Hors droit d'enregistrement et frais de notaire. Terrain + Maison proposés au prix de 202 000 € (Hors branchements et raccordements, papiers peints, peintures, revêtement de sol dans les chambres. Tarif modifiable sans préavis). Etiquette énergie : A. Différents modèles disponibles pour ce terrain. Assurances et garanties du constructeur (RC professionnelle, décennale, dommage ouvrage, garantie de remboursement de l'acompte, livraison à prix et délai convenu) : https://www.constructions-ideale-demeure.fr/mentions-legales/.Agence Constructions Idéale Demeure de Saint-Cyr-sur-Loire (37540)
- Téléphone :
- 02 47 55 88 12
- Adressse :
- 2 rue Thérèse et René Planiol
37540 Saint-Cyr-sur-Loire, France
