Maison neuve à
Parçay-Meslay
(37210) Référence :
RM2405491_4
Prix du projet : Maison avec Terrain
prix 319 800 €
- 7 pièces
- 5 chambres
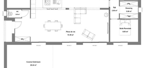
- Surface maison 135 m2
Maison fonctionnelle avec l'architecture en L, inspirée pour la famille. Vous accueille avec son hall d'entrée ouvert avec 2 espaces distinctes, un salon volumineux et un séjour spacieux. La cuisine s'y intègre naturellement. Son espace nuit dessert 5 spacieuses chambres dont 1 suite parentale donnant accès au jardin, 2 salles d'eau avec douche, meuble vasque et son Wc séparé. Un garage double accolé et un cellier la compose;
Imaginons ensemble la maison qui vous ressemble pour que votre projet prenne vie, contactez dès aujourd'hui Rodolphe MARY au °6 71 59 42 46, conseiller technique de l'habitat.
Mentions légales
Terrain proposé par un partenaire foncier selon disponibilités et autorisation de publicité au prix de 75 000 €. Hors droit d'enregistrement et frais de notaire. Terrain + Maison proposés au prix de 244 800 € (Hors branchements et raccordements, papiers peints, peintures, revêtement de sol dans les chambres. Tarif modifiable sans préavis). Etiquette énergie : A. Différents modèles disponibles pour ce terrain. Assurances et garanties du constructeur (RC professionnelle, décennale, dommage ouvrage, garantie de remboursement de l'acompte, livraison à prix et délai convenu) : https://www.constructions-ideale-demeure.fr/mentions-legales/.Agence Constructions Idéale Demeure de Tours (37000)
- Téléphone :
- 02 47 39 37 37
- Adressse :
- 305 rue Giraudeau
37000 Tours, France
