Maison neuve à
Nouzilly
(37380) Référence :
SD2417483_2
Prix du projet : Maison avec Terrain
prix 228 900 €
- 4 pièces
- 2 chambres
- Surface maison 70 m2
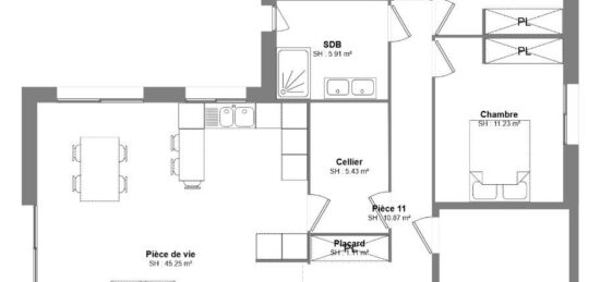
Découvrez cette magnifique maison de 70m² habitables, conçue pour votre confort. Elle comprend deux belles chambres lumineuses, idéales pour toute la famille. Une grande pièce de vie de plus de 40m², Un grand garage spacieux vous offre un espace de stockage pratique ou un abri sécurisé pour votre voiture. Faites construire ce projet alliant fonctionnalité et charme pour un cadre de vie agréable.
De plus, elle est entièrement personnalisable selon vos envies et besoins.
Je reste disponible pour toutes demandes de renseignements, n'hésitez pas me contacter : Stéphane Digneton : °6.64.92.89.69.
CONSTRUCTIONS IDEALE DEMEURE a sélectionné avec un partenaire foncier un terrain pour construire cette maison.
Mentions légales
Terrain proposé par un partenaire foncier selon disponibilités et autorisation de publicité au prix de 65 900 €. Hors droit d'enregistrement et frais de notaire. Terrain + Maison proposés au prix de 228 900 € (Hors branchements et raccordements, papiers peints, peintures, revêtement de sol dans les chambres. Tarif modifiable sans préavis). Etiquette énergie : A. Différents modèles disponibles pour ce terrain. Assurances et garanties du constructeur (RC professionnelle, décennale, dommage ouvrage, garantie de remboursement de l'acompte, livraison à prix et délai convenu) : https://www.constructions-ideale-demeure.fr/mentions-legales/.Agence Constructions Idéale Demeure de Saint-Cyr-sur-Loire (37540)
- Téléphone :
- 02 47 55 88 12
- Adressse :
- 2 rue Thérèse et René Planiol
37540 Saint-Cyr-sur-Loire, France
