Maison neuve à
Neuvy-le-Roi
(37370) Référence :
CS2370073_2
Prix du projet : Maison avec Terrain
prix 195 500 €
- 4 pièces
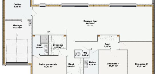
- 3 chambres
- Surface maison 80 m2
Charmante maison aux agencements optimisés vous offrant une belle et lumineuse pièce à vivre avec cuisine ouverte, 3 chambres comprenant des placards intégrés, un garage attenant à la maison.
Nouvelles réglementations 2020, innovation et matériaux performants vous assurent confort au quotidien.
Type de chauffage écologique par pompe à chaleur air/eau.
Construction de haute qualité par Constructions Idéale Demeure depuis 1993.
Recherche foncière si besoin
Suivi du projet de A à Z.
Optimisation des plans sur mesure.
Matériaux de qualité.
N'hésitez pas à contacter Céline SAANOUN au O7.49.43.69.47 pour plus d'informations.
Mentions légales
Terrain proposé par un partenaire foncier selon disponibilités et autorisation de publicité au prix de 32 695 €. Hors droit d'enregistrement et frais de notaire. Terrain + Maison proposés au prix de 162 805 € (Hors branchements et raccordements, papiers peints, peintures, revêtement de sol dans les chambres. Tarif modifiable sans préavis). Etiquette énergie : A. Différents modèles disponibles pour ce terrain. Assurances et garanties du constructeur (RC professionnelle, décennale, dommage ouvrage, garantie de remboursement de l'acompte, livraison à prix et délai convenu) : https://www.constructions-ideale-demeure.fr/mentions-legales/.Agence Constructions Idéale Demeure de Tours (37000)
- Téléphone :
- 02 47 39 37 37
- Adressse :
- 305 rue Giraudeau
37000 Tours, France
