Maison neuve à
Neuillé-Pont-Pierre
(37360) Référence :
SD2431722_2
Prix du projet : Maison avec Terrain
prix 234 400 €
- 6 pièces
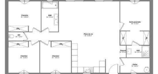
- 4 chambres
- Surface maison 111 m2
Maison à construire de 111 m² offrant une belle pièce de vie traversante, lumineuse et chaleureuse.
Quatre grandes chambres, dont une suite parentale avec dressing, garantissent espace et intimité pour toute la famille.
Un cellier attenant à la cuisine et un garage fermé complètent un plan fonctionnel pensé pour le quotidien.
Je reste disponible pour toutes demandes de renseignements, n'hésitez pas me contacter : Stéphane Digneton : O6.64.92.89.69.
Mentions légales
Terrain proposé par un partenaire foncier selon disponibilités et autorisation de publicité au prix de 65 000 €. Hors droit d'enregistrement et frais de notaire. Terrain + Maison proposés au prix de 234 400 € (Hors branchements et raccordements, papiers peints, peintures, revêtement de sol dans les chambres. Tarif modifiable sans préavis). Etiquette énergie : A. Différents modèles disponibles pour ce terrain. Assurances et garanties du constructeur (RC professionnelle, décennale, dommage ouvrage, garantie de remboursement de l'acompte, livraison à prix et délai convenu) : https://www.constructions-ideale-demeure.fr/mentions-legales/.Agence Constructions Idéale Demeure de Saint-Cyr-sur-Loire (37540)
- Téléphone :
- 02 47 55 88 12
- Adressse :
- 2 rue Thérèse et René Planiol
37540 Saint-Cyr-sur-Loire, France
