Maison neuve à
Montbazon
(37250) Référence :
CS2370081_3
Prix du projet : Maison avec Terrain
prix 379 000 €
- 5 pièces
- 4 chambres
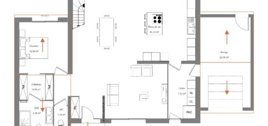
- Surface maison 140 m2
cette jolie maison sur deux niveaux d'environ 140 m² qui se compose de :
Très belle espace à vivre lumineux donnant sur le jardin
4 chambres avec placards + une suite parentale avec dressing et salle d'eau
Un garage attenant au cellier.
Une cuisine ouverte sur séjour.
Chauffage écologique par pompe à chaleur air/eau
Une salle de bain avec WC séparé.
Construction de haute qualité par Constructions Idéale Demeure depuis 1993.
Suivi du projet de A à Z
Optimisation des plans sur mesures.
Matériaux de qualité.
N'hésitez pas à contacter Céline SAANOUN au O7.49.43.69.47 pour plus d'informations.
Mentions légales
Terrain proposé par un partenaire foncier selon disponibilités et autorisation de publicité au prix de 140 000 €. Hors droit d'enregistrement et frais de notaire. Terrain + Maison proposés au prix de 239 000 € (Hors branchements et raccordements, papiers peints, peintures, revêtement de sol dans les chambres. Tarif modifiable sans préavis). Etiquette énergie : A. Différents modèles disponibles pour ce terrain. Assurances et garanties du constructeur (RC professionnelle, décennale, dommage ouvrage, garantie de remboursement de l'acompte, livraison à prix et délai convenu) : https://www.constructions-ideale-demeure.fr/mentions-legales/.Agence Constructions Idéale Demeure de Tours (37000)
- Téléphone :
- 02 47 39 37 37
- Adressse :
- 305 rue Giraudeau
37000 Tours, France
