Maison neuve à
Montbazon
(37250) Référence :
SD2343617_2
Prix du projet : Maison avec Terrain
prix 250 000 €
- 6 pièces
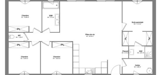
- 4 chambres
- Surface maison 101 m2
VENTE : maison de 6 pièces (101 m²) à Montbazon
IDÉALEMENT SITUÉE - MAISON 6 PIÈCES NEUVE
À quelques kilomètres de Tours, nous vous proposons cette maison de 6 pièces de plain-pied de 101 m² idéalement située dans Montbazon (37250).
Elle dispose de quatre chambres, d'une cuisine et de deux salles de bains. Cette maison est neuve.
Le terrain du bien est de 554 m².
La maison se situe dans un quartier attractif. L'École Élémentaire Guillaume Louis, l'École Maternelle Jean le Bourg et le Collège Albert Camus se trouvent à moins de 10 minutes à pied, tout comme une structure d'accueil pour la petite enfance. Niveau transports, il y a la gare Montbazon dans un rayon de 1 km. Les autoroutes A10 et A85 sont accessibles à moins de 7 km. On trouve un tennis, des commerces, deux boulangeries, un supermarché, un bureau de poste et une poissonnerie à quelques minutes à peine. Le marché Place des anciens comb anime les environs tous les mardis matin.
Elle est à vendre pour la somme de 250 000 €.
Prenez contact avec Stéphane DIGNETON (O6.64.92.89.69) pour tout renseignement sur la maison. Constructions Idéale Demeure Saint-Cyr-sur-Loire est là pour vous accompagner dans tous vos projets immobiliers.
Mentions légales
Terrain proposé par un partenaire foncier selon disponibilités et autorisation de publicité au prix de 98 000 €. Hors droit d'enregistrement et frais de notaire. Maison proposée, avec un contrat de construction de maison individuelle, dans le cadre de la loi du 19/12/1990, au prix de 152 000 € (Hors branchements et raccordements, papiers peints, peintures, revêtement de sol dans les chambres, qui sont chiffrés dans les travaux qui restent à charge du client. Tarif modifiable sans préavis). Étiquette énergie : A. Différents modèles disponibles pour ce terrain. Assurances et garanties du constructeur comprises (RC professionnelle, décennale, dommage ouvrage).Agence Constructions Idéale Demeure de Saint-Cyr-sur-Loire (37540)
- Téléphone :
- 02 47 55 88 12
- Adressse :
- 2 rue Thérèse et René Planiol
37540 Saint-Cyr-sur-Loire, France
