Maison neuve à
Montbazon
(37250) Référence :
SD2331328_3
Prix du projet : Maison avec Terrain
prix 312 000 €
- 4 pièces
- 3 chambres
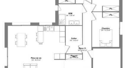
- Surface maison 104 m2
Venez faire construire cette maison en L de 105m², avec une pièce de vie spacieuse de plus de 45m². Elle comprend trois belles chambres, des placards pour un rangement optimal, et un garage intégré. La maison est entièrement personnalisable selon vos envies.
Pour en discuter, contactez Stéphane Digneton au °6 64 92 89 69.
CONSTRUCTIONS IDEALE DEMEURE a sélectionné avec un partenaire foncier un terrain pour construire cette maison.
Mentions légales
Terrain proposé par un partenaire foncier selon disponibilités et autorisation de publicité au prix de 108 000 €. Hors droit d'enregistrement et frais de notaire. Maison proposée, avec un contrat de construction de maison individuelle, dans le cadre de la loi du 19/12/1990, au prix de 204 000 € (Hors branchements et raccordements, papiers peints, peintures, revêtement de sol dans les chambres, qui sont chiffrés dans les travaux qui restent à charge du client. Tarif modifiable sans préavis). Étiquette énergie : A. Différents modèles disponibles pour ce terrain. Assurances et garanties du constructeur comprises (RC professionnelle, décennale, dommage ouvrage).Agence Constructions Idéale Demeure de Saint-Cyr-sur-Loire (37540)
- Téléphone :
- 02 47 55 88 12
- Adressse :
- 2 rue Thérèse et René Planiol
37540 Saint-Cyr-sur-Loire, France
