Maison neuve à
Monnaie
(37380) Référence :
SD2301449_2
Prix du projet : Maison avec Terrain
prix 250 000 €
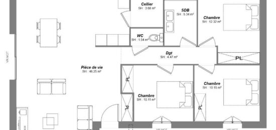
- 4 pièces
- 2 chambres
- Surface maison 89 m2
Voici une belle maison de 89m² à construire, offrant une grande pièce de vie lumineuse grâce à sa triple exposition. Elle comprend deux chambres confortables, une salle de bain équipée d'une douche et d'une baignoire, ainsi qu'un grand garage. Un atout majeur de cette maison est sa terrasse couverte, idéale pour profiter de l'extérieur en toute saison. De plus, elle est entièrement personnalisable selon vos envies et besoins.
Je reste disponible pour toutes demandes de renseignements, n'hésitez pas me contacter : Stéphane Digneton : °6.64.92.89.69.
CONSTRUCTIONS IDEALE DEMEURE a sélectionné avec un partenaire foncier un terrain pour construire cette maison.
Mentions légales
Terrain proposé par un partenaire foncier selon disponibilités et autorisation de publicité au prix de 78 300 €. Hors droit d'enregistrement et frais de notaire. Maison proposée, avec un contrat de construction de maison individuelle, dans le cadre de la loi du 19/12/1990, au prix de 171 700 € (Hors branchements et raccordements, papiers peints, peintures, revêtement de sol dans les chambres, qui sont chiffrés dans les travaux qui restent à charge du client. Tarif modifiable sans préavis). Étiquette énergie : A. Différents modèles disponibles pour ce terrain. Assurances et garanties du constructeur comprises (RC professionnelle, décennale, dommage ouvrage).Agence Constructions Idéale Demeure de Saint-Cyr-sur-Loire (37540)
- Téléphone :
- 02 47 55 88 12
- Adressse :
- 2 rue Thérèse et René Planiol
37540 Saint-Cyr-sur-Loire, France
