Maison neuve à
Mettray
(37390) Référence :
JT2422568_2
Prix du projet : Maison avec Terrain
prix 278 000 €
- 5 pièces
- 4 chambres
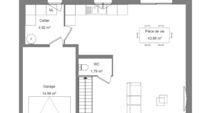
- Surface maison 111 m2
Cette magnifique maison de 111m² dispose d'un garage et d'une grande pièce à vivre de plus de 40m² avec une superbe lumière traversante grâce à ses deux baies coulissantes.
A l'étage de cette maison 4 belles chambres dont une chambre avec un très grand dressing.
Nous réalisons votre projet sur-mesure, contactez-moi Julie Texier au °7.57.82.55.62
CONSTRUCTIONS IDEALE DEMEURE a sélectionné avec un partenaire foncier un terrain pour construire cette maison.
Mentions légales
Terrain proposé par un partenaire foncier selon disponibilités et autorisation de publicité au prix de 98 000 €. Hors droit d'enregistrement et frais de notaire. Terrain + Maison proposés au prix de 278 000 € (Hors branchements et raccordements, papiers peints, peintures, revêtement de sol dans les chambres. Tarif modifiable sans préavis). Etiquette énergie : A. Différents modèles disponibles pour ce terrain. Assurances et garanties du constructeur (RC professionnelle, décennale, dommage ouvrage, garantie de remboursement de l'acompte, livraison à prix et délai convenu) : https://www.constructions-ideale-demeure.fr/mentions-legales/.Agence Constructions Idéale Demeure de Saint-Cyr-sur-Loire (37540)
- Téléphone :
- 02 47 55 88 12
- Adressse :
- 2 rue Thérèse et René Planiol
37540 Saint-Cyr-sur-Loire, France
