Maison neuve à
Mettray
(37390) Référence :
RM2405493_2
Prix du projet : Maison avec Terrain
prix 226 800 €
- 4 pièces
- 3 chambres
- Surface maison 80 m2
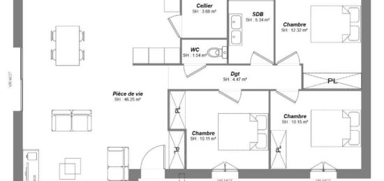
Maison avec son pignon en façade, vous séduira par son style. Vous accueille par son porche. Une grande pièce de vie ouverte avec un espace de rangement. une cuisine séparé par une cloison pour démarquer les volumes.
L'espace nuit se compose de 3 belles chambres fonctionnelles avec ses placards de rangement, une grande salle d'eau avec douche et meuble vasque, ainsi que son Wc séparé. Un garage intégré de 15m2 et un cellier de 5m2
Imaginons ensemble la maison qui vous ressemble pour que votre projet prenne vie, contactez dès aujourd'hui Rodolphe MARY au °6 71 59 42 46, conseiller technique de l'habitat.
Mentions légales
Terrain proposé par un partenaire foncier selon disponibilités et autorisation de publicité au prix de 83 500 €. Hors droit d'enregistrement et frais de notaire. Terrain + Maison proposés au prix de 226 800 € (Hors branchements et raccordements, papiers peints, peintures, revêtement de sol dans les chambres. Tarif modifiable sans préavis). Etiquette énergie : A. Différents modèles disponibles pour ce terrain. Assurances et garanties du constructeur (RC professionnelle, décennale, dommage ouvrage, garantie de remboursement de l'acompte, livraison à prix et délai convenu) : https://www.constructions-ideale-demeure.fr/mentions-legales/.Agence Constructions Idéale Demeure de Tours (37000)
- Téléphone :
- 02 47 39 37 37
- Adressse :
- 305 rue Giraudeau
37000 Tours, France
