Maison neuve à
Mettray (37390) Référence : JT2395659_1

Prix du projet : Maison avec Terrain

prix 278 000 €

  • 5 pièces
  • 4 chambres
  • Surface maison 111 m2

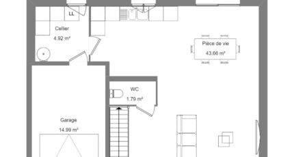
Cette magnifique maison de 111m² dispose d'un garage et d'une grande pièce à vivre de plus de 40m² avec une superbe lumière traversante grâce à ses deux baies coulissantes.
A l'étage de cette maison 4 belles chambres dont une chambre avec un très grand dressing.

Nous réalisons votre projet sur-mesure, contactez-moi Julie Texier au °7.57.82.55.62

CONSTRUCTIONS IDEALE DEMEURE a sélectionné avec un partenaire foncier un terrain pour construire cette maison.

Mentions légales

Terrain proposé par un partenaire foncier selon disponibilités et autorisation de publicité au prix de 98 000 €. Hors droit d'enregistrement et frais de notaire. Terrain + Maison proposés au prix de 278 000 € (Hors branchements et raccordements, papiers peints, peintures, revêtement de sol dans les chambres. Tarif modifiable sans préavis). Etiquette énergie : A. Différents modèles disponibles pour ce terrain. Assurances et garanties du constructeur (RC professionnelle, décennale, dommage ouvrage, garantie de remboursement de l'acompte, livraison à prix et délai convenu) : https://www.constructions-ideale-demeure.fr/mentions-legales/.

Contactez l'agence de Saint-Cyr-sur-Loire

02 47 55 88 12

    * Champs obligatoires

    Vos informations sont traitées par HEXAOM et transmises à un conseiller commercial qui vous contactera afin de répondre à votre demande. Les plans et images présentés sur notre site sont la propriété d’HEXAOM et ne peuvent pas être reproduits sans son accord. Pour retrouver notre politique de protection des données personnelles et exercer vos droits conformément à la « loi informatique et liberté » cliquez-ici.