Maison neuve à
Marcé-sur-Esves
(37160) Référence :
RM2383316_2
Prix du projet : Maison avec Terrain
prix 221 500 €
- 4 pièces
- 3 chambres
- Surface maison 96 m2
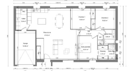
Maison avec comble aménagé de forme compacte, respectant les prescriptions des ABF, avec son pignon en façade et son Porche qui lui donne son style.
A l'entrée vous disposez d'un placard de rangement avec un escalier en quart tournant. L'espace est bien pensé pour laisser apparaitre une suite parentale
avec sa salle d'eau privative. l' espace à vivre est traversant et très lumineux.
La cuisine est intégrée et donne acces à son cellier.
L'espace nuit comprend une suite parentale et 2 belles chambres avec ses placards de rangement
Vous trouverez un volume dans les combles à aménager de 41 m2 supplementaires
Un garage accolé de 15m2 le complète;
Imaginons ensemble la maison qui vous ressemble pour que votre projet prenne vie, contactez dès aujourd'hui Rodolphe MARY au °6 71 59 42 46, conseiller technique de l'habitat.
Mentions légales
Terrain proposé par un partenaire foncier selon disponibilités et autorisation de publicité au prix de 20 100 €. Hors droit d'enregistrement et frais de notaire. Terrain + Maison proposés au prix de 201 400 € (Hors branchements et raccordements, papiers peints, peintures, revêtement de sol dans les chambres. Tarif modifiable sans préavis). Etiquette énergie : A. Différents modèles disponibles pour ce terrain. Assurances et garanties du constructeur (RC professionnelle, décennale, dommage ouvrage, garantie de remboursement de l'acompte, livraison à prix et délai convenu) : https://www.constructions-ideale-demeure.fr/mentions-legales/.Agence Constructions Idéale Demeure de Tours (37000)
- Téléphone :
- 02 47 39 37 37
- Adressse :
- 305 rue Giraudeau
37000 Tours, France
