Maison neuve à
Manthelan
(37240) Référence :
SD2410368_3
Prix du projet : Maison avec Terrain
prix 209 900 €
- 6 pièces
- 4 chambres
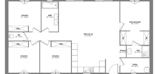
- Surface maison 101 m2
Voici une belle maison à construire de 101m², comprenant quatre chambres dont une suite parentale. Elle dispose de deux salles de bain pour plus de confort. La grande pièce de vie de plus de 40m² est lumineuse grâce à ses deux baies vitrées. Cette maison allie espace et fonctionnalité pour toute la famille.
Je reste disponible pour toutes demandes de renseignements, n'hésitez pas me contacter : Stéphane Digneton : °6.64.92.89.69.
CONSTRUCTIONS IDEALE DEMEURE a sélectionné avec un partenaire foncier un terrain pour construire cette maison.
Mentions légales
Terrain proposé par un partenaire foncier selon disponibilités et autorisation de publicité au prix de 54 900 €. Hors droit d'enregistrement et frais de notaire. Terrain + Maison proposés au prix de 155 000 € (Hors branchements et raccordements, papiers peints, peintures, revêtement de sol dans les chambres. Tarif modifiable sans préavis). Etiquette énergie : A. Différents modèles disponibles pour ce terrain. Assurances et garanties du constructeur (RC professionnelle, décennale, dommage ouvrage, garantie de remboursement de l'acompte, livraison à prix et délai convenu) : https://www.constructions-ideale-demeure.fr/mentions-legales/.Agence Constructions Idéale Demeure de Saint-Cyr-sur-Loire (37540)
- Téléphone :
- 02 47 55 88 12
- Adressse :
- 2 rue Thérèse et René Planiol
37540 Saint-Cyr-sur-Loire, France
