Maison neuve à
Maillé
(37800) Référence :
RM2383344_3
Prix du projet : Maison avec Terrain
prix 186 500 €
- 4 pièces
- 3 chambres
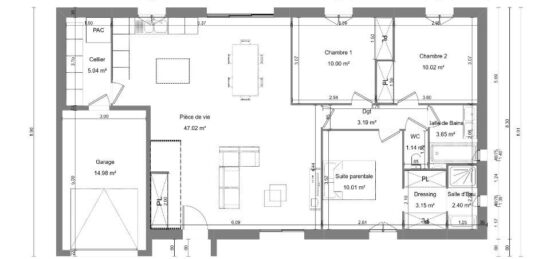
- Surface maison 85 m2
Maison de plain pied rectangulaire. Respectant les prescriptions des ABF, Petites tuiles ou Ardoises naturelles , vous accueille avec son grand espace à vivre de 40m2. Une cuisine en U ouverte et bien pensée
Un espace de nuit composé de 3 belles chambres avec ses espaces de rangement, une salle d'eau avec une douche, un meuble vasque et son wc séparé. Un garage intégré 15m2 et un cellier 5m2
Imaginons ensemble la maison qui vous ressemble pour que votre projet prenne vie, contactez dès aujourd'hui Rodolphe MARY au °6 71 59 42 46, conseiller technique de l'habitat.
Mentions légales
Terrain proposé par un partenaire foncier selon disponibilités et autorisation de publicité au prix de 26 200 €. Hors droit d'enregistrement et frais de notaire. Terrain + Maison proposés au prix de 160 300 € (Hors branchements et raccordements, papiers peints, peintures, revêtement de sol dans les chambres. Tarif modifiable sans préavis). Etiquette énergie : A. Différents modèles disponibles pour ce terrain. Assurances et garanties du constructeur (RC professionnelle, décennale, dommage ouvrage, garantie de remboursement de l'acompte, livraison à prix et délai convenu) : https://www.constructions-ideale-demeure.fr/mentions-legales/.Agence Constructions Idéale Demeure de Tours (37000)
- Téléphone :
- 02 47 39 37 37
- Adressse :
- 305 rue Giraudeau
37000 Tours, France
