Maison neuve à
La Croix-en-Touraine
(37150) Référence :
JT2255935_4
Prix du projet : Maison avec Terrain
prix 273 000 €
- 4 pièces
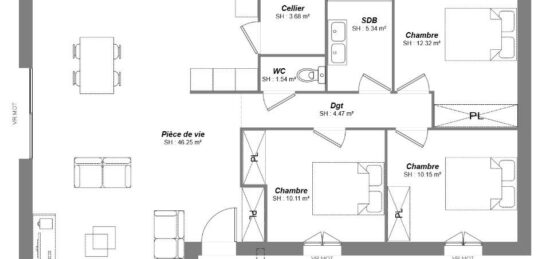
- 3 chambres
- Surface maison 86 m2
Maison de plain-pied avec 3 chambres et une salle d'eau avec WC séparé.
Cette maison dispose d'une entrée semi ouverte et fonctionnelle avec deux grand placards, puis d'un grand séjour ouvert de plus de 45 m² avec un accès au cellier au niveau de la cuisine. Un garage de 15 m² vient compléter cette maison.
Nous réalisons votre projet sur-mesure, contactez-moi Julie Texier au °7.57.82.55.62
CONSTRUCTIONS IDEALE DEMEURE a sélectionné avec un partenaire foncier un terrain pour construire cette maison.
Mentions légales
Terrain proposé par un partenaire foncier selon disponibilités et autorisation de publicité au prix de 73 000 €. Hors droit d'enregistrement et frais de notaire. Maison proposée, avec un contrat de construction de maison individuelle, dans le cadre de la loi du 19/12/1990, au prix de 200 000 € (Hors branchements et raccordements, papiers peints, peintures, revêtement de sol dans les chambres, qui sont chiffrés dans les travaux qui restent à charge du client. Tarif modifiable sans préavis). Étiquette énergie : A. Différents modèles disponibles pour ce terrain. Assurances et garanties du constructeur comprises (RC professionnelle, décennale, dommage ouvrage).Agence Constructions Idéale Demeure de Saint-Cyr-sur-Loire (37540)
- Téléphone :
- 02 47 55 88 12
- Adressse :
- 2 rue Thérèse et René Planiol
37540 Saint-Cyr-sur-Loire, France
