Maison neuve à
Joué-lès-Tours
(37300) Référence :
SD2343735_1
Prix du projet : Maison avec Terrain
prix 293 700 €
- 4 pièces
- 3 chambres
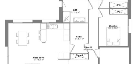
- Surface maison 92 m2
Maison de 4 pièces (92 m²) en vente à Joué-lès-Tours
IDÉALEMENT SITUÉE - MAISON 4 PIÈCES NEUVE
À vendre : nous sommes heureux de vous proposer, idéalement située dans Joué-lès-Tours (37300), cette maison de 4 pièces de plain-pied de 92 m² et de 416 m² de terrain.
Elle inclut trois chambres, une cuisine et une salle de bains. Cette maison est neuve.
La maison se situe dans un secteur prisé. Plusieurs établissements scolaires (maternelle, élémentaire et lycée) sont implantés à moins de 10 minutes à pied, tout comme trois crèches. Les autoroutes A10 et A85 sont accessibles à moins de 8 km. On trouve deux bassins de natation, une bibliothèque, deux boulangeries, des commerces, une épicerie et une supérette à quelques minutes.
Elle est proposée à l'achat pour 293 700 €.
Contactez Stéphane DIGNETON (tél : O6.64.92.89.69) pour toute information sur la maison ou sur les démarches à suivre. Constructions Idéale Demeure Saint-Cyr-sur-Loire est là pour vous accompagner à toutes les étapes de l'achat.
Mentions légales
Terrain proposé par un partenaire foncier selon disponibilités et autorisation de publicité au prix de 117 000 €. Hors droit d'enregistrement et frais de notaire. Terrain + Maison proposés au prix de 176 700 € (Hors branchements et raccordements, papiers peints, peintures, revêtement de sol dans les chambres. Tarif modifiable sans préavis). Etiquette énergie : A. Différents modèles disponibles pour ce terrain. Assurances et garanties du constructeur (RC professionnelle, décennale, dommage ouvrage, garantie de remboursement de l'acompte, livraison à prix et délai convenu) : https://www.constructions-ideale-demeure.fr/mentions-legales/.Agence Constructions Idéale Demeure de Saint-Cyr-sur-Loire (37540)
- Téléphone :
- 02 47 55 88 12
- Adressse :
- 2 rue Thérèse et René Planiol
37540 Saint-Cyr-sur-Loire, France
