Maison neuve à
Joué-lès-Tours
(37300) Référence :
JT2255877_4
Prix du projet : Maison avec Terrain
prix 326 000 €
- 6 pièces
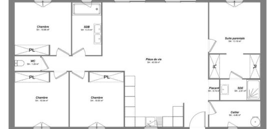
- 4 chambres
- Surface maison 127 m2
Offrez-vous une maison moderne et fonctionnelle à construire :
Surface de 127 m² : idéale pour toute la famille.
Rez-de-chaussée : suite parentale avec salle d'eau, garage attenant et belle pièce de vie spacieuse et lumineuse.
À l'étage : 3 chambres confortables et salle de bain.
Conception moderne et agencement optimisé.
Contactez-moi pour personnaliser votre future maison Julie °7.57.82.55.62
CONSTRUCTIONS IDEALE DEMEURE a sélectionné avec un partenaire foncier un terrain pour construire cette maison.
Mentions légales
Terrain proposé par un partenaire foncier selon disponibilités et autorisation de publicité au prix de 126 000 €. Hors droit d'enregistrement et frais de notaire. Maison proposée, avec un contrat de construction de maison individuelle, dans le cadre de la loi du 19/12/1990, au prix de 200 000 € (Hors branchements et raccordements, papiers peints, peintures, revêtement de sol dans les chambres, qui sont chiffrés dans les travaux qui restent à charge du client. Tarif modifiable sans préavis). Étiquette énergie : A. Différents modèles disponibles pour ce terrain. Assurances et garanties du constructeur comprises (RC professionnelle, décennale, dommage ouvrage).Agence Constructions Idéale Demeure de Saint-Cyr-sur-Loire (37540)
- Téléphone :
- 02 47 55 88 12
- Adressse :
- 2 rue Thérèse et René Planiol
37540 Saint-Cyr-sur-Loire, France
