Maison neuve à
Joué-lès-Tours
(37300) Référence :
JT2255877_5
Prix du projet : Maison avec Terrain
prix 256 000 €
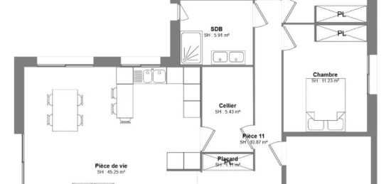
- 4 pièces
- 3 chambres
- Surface maison 81 m2
Cette charmante maison de plain-pied est conçue de manière moderne et pratique, offrant un espace de vie confortable pour une famille. Le vaste séjour lumineux de 40m², avec une cuisine ouverte, permet d'accueillir un salon confortable et une salle à manger conviviale, idéale pour recevoir des proches.
Cette maison dispose de 3 belles chambres avec une salle de bains moderne équipée d'une douche extra-plate. Un garage complète cette maison.
En résumé, cette maison de plain-pied avec 3 chambres et un séjour de 40m² propose un agencement fonctionnel, des espaces lumineux, et une atmosphère conviviale.
Pour un projet sur-mesure, contactez-moi Julie Texier au °7.57.82.55.62.
CONSTRUCTIONS IDEALE DEMEURE a sélectionné avec un partenaire foncier un terrain pour construire cette maison.
Mentions légales
Terrain proposé par un partenaire foncier selon disponibilités et autorisation de publicité au prix de 126 000 €. Hors droit d'enregistrement et frais de notaire. Maison proposée, avec un contrat de construction de maison individuelle, dans le cadre de la loi du 19/12/1990, au prix de 130 000 € (Hors branchements et raccordements, papiers peints, peintures, revêtement de sol dans les chambres, qui sont chiffrés dans les travaux qui restent à charge du client. Tarif modifiable sans préavis). Étiquette énergie : A. Différents modèles disponibles pour ce terrain. Assurances et garanties du constructeur comprises (RC professionnelle, décennale, dommage ouvrage).Agence Constructions Idéale Demeure de Saint-Cyr-sur-Loire (37540)
- Téléphone :
- 02 47 55 88 12
- Adressse :
- 2 rue Thérèse et René Planiol
37540 Saint-Cyr-sur-Loire, France
