Maison neuve à
Esvres
(37320) Référence :
RM2379857_4
Prix du projet : Maison avec Terrain
prix 439 800 €
- 7 pièces
- 5 chambres
- Surface maison 170 m2
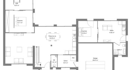
VENTE d'une maison de 7 pièces (170 m²) à Esvres
EMPLACEMENT PRIVILÉGIÉ - MAISON 7 PIÈCES NEUVE
En vente : à quelques kilomètres de Tours, nous vous présentons, bénéficiant d'un emplacement d'exception dans Esvres (37320), cette maison de 7 pièces de 170 m² et de 925 m² de terrain.
Il s'agit d'une maison de 2 niveaux. Son intérieur compte cinq chambres, une cuisine et trois salles de bains. Cette maison est neuve.
La propriété se situe dans un quartier convoité. L'École Primaire Privée Sainte Thérèse, l'École Élémentaire Joseph Bourreau et l'École Maternelle les Sources sont implantées à moins de 10 minutes à pied, tout comme deux structures d'accueil pour la petite enfance. Niveau transports, il y a la gare Esvres sur Indre juste à côté. Les autoroutes A85 et A10 sont accessibles à moins de 7 km. On trouve un bassin de natation, deux boulangeries, des commerces, un supermarché, deux épiceries et trois boucheries-charcuteries à proximité du bien. Ne manquez pas le marché Place Joseph Bourreau chaque samedi matin.
Elle est à vendre pour la somme de 439 800 €.
Prenez contact avec notre agence (MARY Rodolphe : 02-47-39-37-37) pour tout renseignement sur la maison ou sur les démarches à suivre.
Mentions légales
Terrain proposé par un partenaire foncier selon disponibilités et autorisation de publicité au prix de 98 000 €. Hors droit d'enregistrement et frais de notaire. Terrain + Maison proposés au prix de 341 800 € (Hors branchements et raccordements, papiers peints, peintures, revêtement de sol dans les chambres. Tarif modifiable sans préavis). Etiquette énergie : A. Différents modèles disponibles pour ce terrain. Assurances et garanties du constructeur (RC professionnelle, décennale, dommage ouvrage, garantie de remboursement de l'acompte, livraison à prix et délai convenu) : https://www.constructions-ideale-demeure.fr/mentions-legales/.Agence Constructions Idéale Demeure de Tours (37000)
- Téléphone :
- 02 47 39 37 37
- Adressse :
- 305 rue Giraudeau
37000 Tours, France
