Maison neuve à
Druye
(37190) Référence :
SD2314001_3
Prix du projet : Maison avec Terrain
prix 211 600 €
- 4 pièces
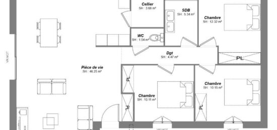
- 3 chambres
- Surface maison 85 m2
Belle maison traditionnelle de plain pied comprenant 3 chambres, une salle de bain ainsi qu'un cellier et un WC.
Parfait pour un premier achat ou un investissement locatif!
Le combles aménageables saura suivre l'évolution de votre famille et celle de vos envies.
CONSTRUCTIONS IDEALE DEMEURE a sélectionné avec un partenaire foncier un terrain pour construire cette maison.
N''hésitez pas à contacter Stéphane Digneton au °6.64.92.89.69 qui se fera une joie de vous présenter un projet terrain + maison en accord avec vos attentes.
Mentions légales
Terrain proposé par un partenaire foncier selon disponibilités et autorisation de publicité au prix de 81 000 €. Hors droit d'enregistrement et frais de notaire. Maison proposée, avec un contrat de construction de maison individuelle, dans le cadre de la loi du 19/12/1990, au prix de 130 600 € (Hors branchements et raccordements, papiers peints, peintures, revêtement de sol dans les chambres, qui sont chiffrés dans les travaux qui restent à charge du client. Tarif modifiable sans préavis). Étiquette énergie : A. Différents modèles disponibles pour ce terrain. Assurances et garanties du constructeur comprises (RC professionnelle, décennale, dommage ouvrage).Agence Constructions Idéale Demeure de Saint-Cyr-sur-Loire (37540)
- Téléphone :
- 02 47 55 88 12
- Adressse :
- 2 rue Thérèse et René Planiol
37540 Saint-Cyr-sur-Loire, France
