Maison neuve à
Chambourg-sur-Indre
(37310) Référence :
SD2401907_1
Prix du projet : Maison avec Terrain
prix 226 000 €
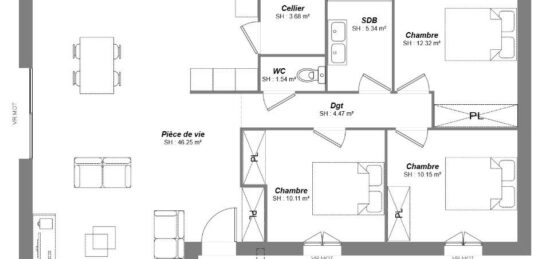
- 4 pièces
- 2 chambres
- Surface maison 90 m2
Belle maison de plain-pied de 92 m², combles aménageables, belle pièce à vivre de plus de 50 m², deux chambres avec placard, une salle de bain commune, un cellier et un grand garage.
CONSTRUCTIONS IDEALE DEMEURE a sélectionné avec un partenaire foncier un terrain pour construire cette maison.
Je reste disponible pour toutes demandes de renseignements, n'hésitez pas à me contacter : Stéphane Digneton : °6.64.92.89.69
Mentions légales
Terrain proposé par un partenaire foncier selon disponibilités et autorisation de publicité au prix de 42 000 €. Hors droit d'enregistrement et frais de notaire. Terrain + Maison proposés au prix de 184 000 € (Hors branchements et raccordements, papiers peints, peintures, revêtement de sol dans les chambres. Tarif modifiable sans préavis). Etiquette énergie : A. Différents modèles disponibles pour ce terrain. Assurances et garanties du constructeur (RC professionnelle, décennale, dommage ouvrage, garantie de remboursement de l'acompte, livraison à prix et délai convenu) : https://www.constructions-ideale-demeure.fr/mentions-legales/.Agence Constructions Idéale Demeure de Saint-Cyr-sur-Loire (37540)
- Téléphone :
- 02 47 55 88 12
- Adressse :
- 2 rue Thérèse et René Planiol
37540 Saint-Cyr-sur-Loire, France
