Maison neuve à
Chambourg-sur-Indre
(37310) Référence :
SD2286622_2
Prix du projet : Maison avec Terrain
prix 226 000 €
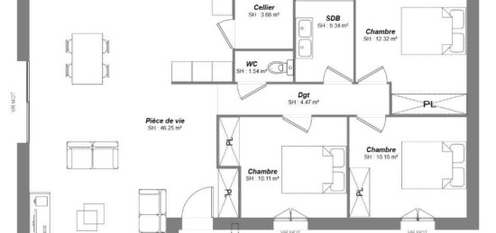
- 4 pièces
- 2 chambres
- Surface maison 90 m2
Belle maison de plain-pied de 92 m², combles aménageables, belle pièce à vivre de plus de 50 m², deux chambres avec placard, une salle de bain commune, un cellier et un grand garage.
CONSTRUCTIONS IDEALE DEMEURE a sélectionné avec un partenaire foncier un terrain pour construire cette maison.
Je reste disponible pour toutes demandes de renseignements, n'hésitez pas à me contacter : Stéphane Digneton : °6.64.92.89.69
Mentions légales
Terrain proposé par un partenaire foncier selon disponibilités et autorisation de publicité au prix de 42 000 €. Hors droit d'enregistrement et frais de notaire. Maison proposée, avec un contrat de construction de maison individuelle, dans le cadre de la loi du 19/12/1990, au prix de 184 000 € (Hors branchements et raccordements, papiers peints, peintures, revêtement de sol dans les chambres, qui sont chiffrés dans les travaux qui restent à charge du client. Tarif modifiable sans préavis). Étiquette énergie : A. Différents modèles disponibles pour ce terrain. Assurances et garanties du constructeur comprises (RC professionnelle, décennale, dommage ouvrage).Agence Constructions Idéale Demeure de Saint-Cyr-sur-Loire (37540)
- Téléphone :
- 02 47 55 88 12
- Adressse :
- 2 rue Thérèse et René Planiol
37540 Saint-Cyr-sur-Loire, France
