Maison neuve à
Beaumont-la-Ronce
(37360) Référence :
JT2406683_2
Prix du projet : Maison avec Terrain
prix 470 000 €
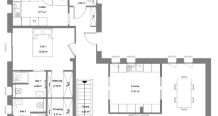
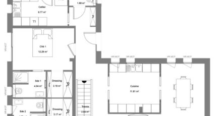
- 7 pièces
- 5 chambres
- Surface maison 150 m2
Maison moderne de 190m² avec prestations haut de gamme !
Découvrez cette magnifique maison à étage offrant un design épuré et contemporain. Vous serez séduit par son grand séjour avec un impressionnant vide sur hall, accentuant l'espace et la lumière naturelle. Cette maison comprend deux suites parentales pour un confort optimal, ainsi que deux autres chambres à l'étage. Son vaste espace de vie de plus de 54m² et sa cuisine fermée de 12m², allient intimité et fonctionnalité.
Un grand carport complète ce bien, pouvant accueillir deux voitures. Un vrai coup de coeur pour ceux qui cherchent espace, confort et élégance.
Je vous accompagne dans votre projet de la conception à la recherche foncière jusqu'à l'optimisation de votre financement, contactez-moi dès maintenant au °7.57.82.55.62 - Julie Texier.
Mentions légales
Terrain proposé par un partenaire foncier selon disponibilités et autorisation de publicité au prix de 70 460 €. Hors droit d'enregistrement et frais de notaire. Terrain + Maison proposés au prix de 399 540 € (Hors branchements et raccordements, papiers peints, peintures, revêtement de sol dans les chambres. Tarif modifiable sans préavis). Etiquette énergie : A. Différents modèles disponibles pour ce terrain. Assurances et garanties du constructeur (RC professionnelle, décennale, dommage ouvrage, garantie de remboursement de l'acompte, livraison à prix et délai convenu) : https://www.constructions-ideale-demeure.fr/mentions-legales/.Agence Constructions Idéale Demeure de Saint-Cyr-sur-Loire (37540)
- Téléphone :
- 02 47 55 88 12
- Adressse :
- 2 rue Thérèse et René Planiol
37540 Saint-Cyr-sur-Loire, France
