Maison neuve à
Beaumont-la-Ronce
(37360) Référence :
JT2406683_1
Prix du projet : Maison avec Terrain
prix 530 000 €
- 7 pièces
- 4 chambres
- Surface maison 200 m2
Votre future maison sur mesure : élégance, confort et modernité
Découvrez cette maison à construire, pensée pour offrir des espaces de vie lumineux, généreux et fonctionnels.
Chaque détail a été soigneusement conçu pour répondre aux attentes d'une vie confortable et harmonieuse. Au rez-de-chaussée :
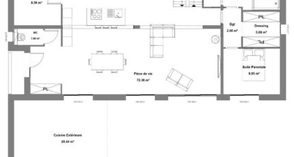
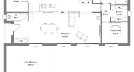
Un grand espace de vie ouvert de 70 m², idéal pour des moments de convivialité, avec une entrée dégagée équipée de rangements.
Accès direct à une cuisine d'extérieur de 28 m², parfaite pour profiter des repas en plein air.
Une suite parentale avec dressing et salle de bain, alliant intimité et confort.
Les espaces de vie donnent sur une terrasse ensoleillée, offrant une possibilité de piscine pour des instants de détente.
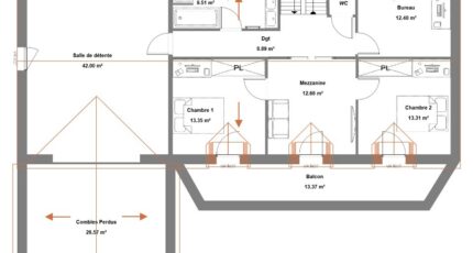
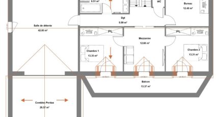
À l'étage :
Une salle de détente modulable de 20 m², transformable selon vos besoins en salle de sport, bureau ou espace de loisirs.
Trois chambres avec accès à un balcon commun, offrant un bel espace de partage et une vue dégagée.
Une mezzanine de 12 m² surplombant le séjour, ajoutant une touche de style à l'ensemble.
Une salle de bain de 10 m², spacieuse et moderne. Cette maison allie charme régional et touches contemporaines, tout en offrant des espaces intérieurs et extérieurs où la lumière est mise à l'honneur.
Cette maison allie charme régional et touches contemporaines, tout en offrant des espaces intérieurs et extérieurs où la lumière est mise à l'honneur.
Pour plus de renseignement au °7.57.82.55.62
Mentions légales
Terrain proposé par un partenaire foncier selon disponibilités et autorisation de publicité au prix de 70 460 €. Hors droit d'enregistrement et frais de notaire. Terrain + Maison proposés au prix de 459 540 € (Hors branchements et raccordements, papiers peints, peintures, revêtement de sol dans les chambres. Tarif modifiable sans préavis). Etiquette énergie : A. Différents modèles disponibles pour ce terrain. Assurances et garanties du constructeur (RC professionnelle, décennale, dommage ouvrage, garantie de remboursement de l'acompte, livraison à prix et délai convenu) : https://www.constructions-ideale-demeure.fr/mentions-legales/.Agence Constructions Idéale Demeure de Saint-Cyr-sur-Loire (37540)
- Téléphone :
- 02 47 55 88 12
- Adressse :
- 2 rue Thérèse et René Planiol
37540 Saint-Cyr-sur-Loire, France
