Maison neuve à
Ballan-Miré
(37510) Référence :
SD2344205_1
Prix du projet : Maison avec Terrain
prix 394 950 €
- 4 pièces
- 4 chambres
- Surface maison 120 m2
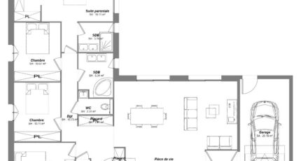
Ballan-Miré : maison T4 (120 m²) en vente
PROCHE DE TOURS - MAISON 4 PIÈCES NEUVE
En vente à quelques kilomètres de Tours, à Ballan-Miré (37510), Constructions Idéale Demeure Saint-Cyr-sur-Loire vous propose cette maison de 4 pièces de plain-pied de 120 m².
Conçue de plain-pied, elle offre quatre chambres, une cuisine et deux salles de bains. Cette maison est neuve.
Le terrain du bien est de 749 m².
Quatre établissements scolaires sont implantés à moins de 10 minutes à pied, tout comme deux structures d'accueil pour la petite enfance. Niveau transports en commun, on trouve la gare Ballan-Miré à proximité. Les autoroutes A85 et A10 sont accessibles à moins de 6 km. Il y a un tennis, quatre commerces, deux boulangeries, un supermarché, un bureau de poste et deux boucheries charcuteries dans les environs. Le marché Place du 11 novembre anime le quartier.
Elle est proposée à l'achat pour 394 950 €.
Contactez notre agence (DIGNETON Stéphane : O6.64.92.89.69) pour toute question sur la maison. Constructions Idéale Demeure Saint-Cyr-sur-Loire vous accompagne dans toutes vos démarches et à toutes les étapes de votre projet.
Mentions légales
Terrain proposé par un partenaire foncier selon disponibilités et autorisation de publicité au prix de 159 000 €. Hors droit d'enregistrement et frais de notaire. Maison proposée, avec un contrat de construction de maison individuelle, dans le cadre de la loi du 19/12/1990, au prix de 235 950 € (Hors branchements et raccordements, papiers peints, peintures, revêtement de sol dans les chambres, qui sont chiffrés dans les travaux qui restent à charge du client. Tarif modifiable sans préavis). Étiquette énergie : A. Différents modèles disponibles pour ce terrain. Assurances et garanties du constructeur comprises (RC professionnelle, décennale, dommage ouvrage).Agence Constructions Idéale Demeure de Saint-Cyr-sur-Loire (37540)
- Téléphone :
- 02 47 55 88 12
- Adressse :
- 2 rue Thérèse et René Planiol
37540 Saint-Cyr-sur-Loire, France
