Maison neuve à
Azay-sur-Cher
(37270) Référence :
SD2344163_1
Prix du projet : Maison avec Terrain
prix 308 000 €
- 4 pièces
- 3 chambres
- Surface maison 104 m2
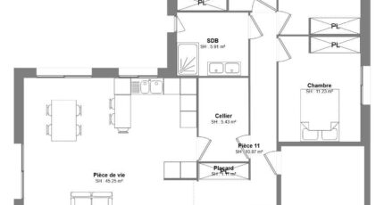
Maison de 4 pièces (104 m²) en vente à Azay-sur-Cher
IDÉALEMENT SITUÉE - MAISON 4 PIÈCES NEUVE
En vente : localisée à quelques kilomètres de Tours, idéalement située dans Azay-sur-Cher (37270), nous sommes heureux de vous présenter cette maison de 4 pièces de plain-pied de 104 m². Son intérieur propose trois chambres, une cuisine et une salle de bains.
Le terrain du bien est de 753 m².
La maison est neuve.
Cette maison se trouve dans un secteur prisé. Il y a l'École Maternelle Charles Perrault et l'École Élémentaire Maurice Genevoix à moins de 10 minutes à pied et une structure d'accueil pour les tout-petits. Niveau transports, on trouve six gares à moins de 10 minutes en voiture. L'autoroute A85 est accessible à 6 km. Il y a un tennis, trois commerces, deux boulangeries, un bureau de poste et une épicerie à proximité.
Elle est à vendre pour la somme de 308 000 €.
Prenez contact avec Stéphane DIGNETON (tél : O6.64.92.89.69) pour toute information sur la maison ou sur les démarches à suivre. Donnez vie à vos projets immobiliers avec Constructions Idéale Demeure Saint-Cyr-sur-Loire.
Mentions légales
Terrain proposé par un partenaire foncier selon disponibilités et autorisation de publicité au prix de 106 000 €. Hors droit d'enregistrement et frais de notaire. Maison proposée, avec un contrat de construction de maison individuelle, dans le cadre de la loi du 19/12/1990, au prix de 202 000 € (Hors branchements et raccordements, papiers peints, peintures, revêtement de sol dans les chambres, qui sont chiffrés dans les travaux qui restent à charge du client. Tarif modifiable sans préavis). Étiquette énergie : A. Différents modèles disponibles pour ce terrain. Assurances et garanties du constructeur comprises (RC professionnelle, décennale, dommage ouvrage).Agence Constructions Idéale Demeure de Saint-Cyr-sur-Loire (37540)
- Téléphone :
- 02 47 55 88 12
- Adressse :
- 2 rue Thérèse et René Planiol
37540 Saint-Cyr-sur-Loire, France
