Maison neuve à
Azay-le-Rideau
(37190) Référence :
JT2411856_1
Prix du projet : Maison avec Terrain
prix 299 000 €
- 6 pièces
- 4 chambres
- Surface maison 150 m2
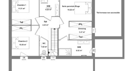
Cette maison à construire est un mélange de toit à 4 pans et de toit terrasse, offrant un design unique. Elle est lumineuse grâce à de grandes baies vitrées qui apportent beaucoup de lumière naturelle. Le garage spacieux de 25m² permet un stationnement facile. La pièce à vivre de 50m² offre un espace de vie convivial et confortable. Avec deux suites parentales et deux autres grandes chambres, cette maison offre un total de 153m² habitables, idéale pour une famille nombreuse ou des invités.
Nous réalisons votre projet sur-mesure, contactez-moi Julie Texier au 07.57.82.55.62
Mentions légales
Terrain proposé par un partenaire foncier selon disponibilités et autorisation de publicité au prix de 69 300 €. Hors droit d'enregistrement et frais de notaire. Terrain + Maison proposés au prix de 299 000 € (Hors branchements et raccordements, papiers peints, peintures, revêtement de sol dans les chambres. Tarif modifiable sans préavis). Etiquette énergie : A. Différents modèles disponibles pour ce terrain. Assurances et garanties du constructeur (RC professionnelle, décennale, dommage ouvrage, garantie de remboursement de l'acompte, livraison à prix et délai convenu) : https://www.constructions-ideale-demeure.fr/mentions-legales/.Agence Constructions Idéale Demeure de Saint-Cyr-sur-Loire (37540)
- Téléphone :
- 02 47 55 88 12
- Adressse :
- 2 rue Thérèse et René Planiol
37540 Saint-Cyr-sur-Loire, France
