Maison neuve à
Azay-le-Rideau
(37190) Référence :
SD2296220_1
Prix du projet : Maison avec Terrain
prix 211 800 €
- 6 pièces
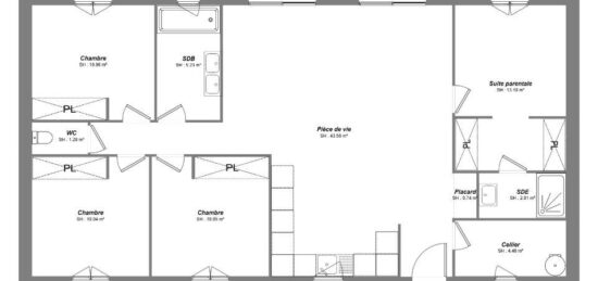
- 4 chambres
- Surface maison 101 m2
Voici une belle maison à construire de 101m², comprenant quatre chambres dont une suite parentale. Elle dispose de deux salles de bain pour plus de confort. La grande pièce de vie de plus de 40m² est lumineuse grâce à ses deux baies vitrées. Cette maison allie espace et fonctionnalité pour toute la famille.
Je reste disponible pour toutes demandes de renseignements, n'hésitez pas me contacter : Stéphane Digneton : °6.64.92.89.69.
CONSTRUCTIONS IDEALE DEMEURE a sélectionné avec un partenaire foncier un terrain pour construire cette maison.
Mentions légales
Terrain proposé par un partenaire foncier selon disponibilités et autorisation de publicité au prix de 56 800 €. Hors droit d'enregistrement et frais de notaire. Maison proposée, avec un contrat de construction de maison individuelle, dans le cadre de la loi du 19/12/1990, au prix de 155 000 € (Hors branchements et raccordements, papiers peints, peintures, revêtement de sol dans les chambres, qui sont chiffrés dans les travaux qui restent à charge du client. Tarif modifiable sans préavis). Étiquette énergie : A. Différents modèles disponibles pour ce terrain. Assurances et garanties du constructeur comprises (RC professionnelle, décennale, dommage ouvrage).Agence Constructions Idéale Demeure de Saint-Cyr-sur-Loire (37540)
- Téléphone :
- 02 47 55 88 12
- Adressse :
- 2 rue Thérèse et René Planiol
37540 Saint-Cyr-sur-Loire, France
