Maison neuve à
Artannes-sur-Indre
(37260) Référence :
SD2341956_2
Prix du projet : Maison avec Terrain
prix 237 000 €
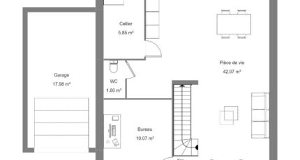
- 4 pièces
- 3 chambres
- Surface maison 80 m2
Belle maison de m² avec des combles aménagés.
Cette maison vous offre une grande pièce à vivre de 43 m² et 3 belles chambres dont une chambre avec un dressing.
Vous disposerez également d'un bureau au RDC pouvant se transformer en chambre.
Un garage et un cellier sont également prévus pour un maximum de confort.
Côté prestations : Pompe à chaleur avec plancher chauffant, Menuiseries RAL 7016
CONSTRUCTIONS IDEALE DEMEURE a sélectionné avec un partenaire foncier un terrain pour construire cette maison.
Je reste disponible pour toutes demandes de renseignements, n'hésitez pas me contacter : Stéphane Digneton : O6.64.92.89.69.
Mentions légales
Terrain proposé par un partenaire foncier selon disponibilités et autorisation de publicité au prix de 62 500 €. Hors droit d'enregistrement et frais de notaire. Terrain + Maison proposés au prix de 174 500 € (Hors branchements et raccordements, papiers peints, peintures, revêtement de sol dans les chambres. Tarif modifiable sans préavis). Etiquette énergie : A. Différents modèles disponibles pour ce terrain. Assurances et garanties du constructeur (RC professionnelle, décennale, dommage ouvrage, garantie de remboursement de l'acompte, livraison à prix et délai convenu) : https://www.constructions-ideale-demeure.fr/mentions-legales/.Agence Constructions Idéale Demeure de Saint-Cyr-sur-Loire (37540)
- Téléphone :
- 02 47 55 88 12
- Adressse :
- 2 rue Thérèse et René Planiol
37540 Saint-Cyr-sur-Loire, France
